+6
Öncelikle yaşadığınız mağduriyet için çok üzgünüz. Bazı teknik hatalar tarafımızca kabul edilmekte ve ilgili sorumlu şantiye şefimiz ile ilgili gerekli işlemler yapılmış, maliyetler tarafımızca karşılanarak kırım işlemi yapılmış ve mağduriyetiniz en aza indirilmeye çalışmış ve hata minimal hale getirilmiştir. Fakat yaşanan bu süreç, Zorlu arazi koşulları,tarafınızın yol problemi, ruhsat ve komşuların arazisini kullanmak zorunda olmamız, kötü hava muhalefeti, ve şehir merkezine çok uzakta olmamız sebebiyle işler hızlıca tamamlanamamış ve bir çok problemle karşılaşılmıştır.
Fakat haksız olduğunuz konular hakkında birkaç açıklama yapma gereksinimi duyduk.
19.03.2024 tarihli Antalya Kumluca/ Kuzca Mevkii, 494/17 parsel de inşa edilmekte olan, tarafınızın iş sahibi, tarafımızın ise yüklenici olduğu 128 m2 kapalı alan, 33 m2 veranda olmak üzere betonarme Villa Sözleşmesi Teknik şartnamemizde belirtilen iş akitleri 4,680,000 TL + ek imalat talepleriniz) tutar üzerinden akdedilmiştir. Anlaşmamız dahilinde parçalar halinde tarafımıza 3,055,000 TL Ödeme yapılmış, Aluminyum Doğrama talebiniz ve ek aksesuar taleplerinize istinaden 180.000 TL Panjur dahil fark yansıtılmıştır.
Yapınızın ruhsatsız olması kaynaklı ve komşunuzun yol izni vermemesi sebebiyle 4 Mayıs tarihinde arazi kazılarınız yaptırılabilmiş, havanın yoğun yağış alması ve yol meyinilizden dolayı araziye girilememesi, beton firmalarının beton atmayı reddetmesi (Sadece Kalıp Ekibimiz dolgu için 12 gün boyunca beklemiş) sebebiyle sadece grobeton uygulaması yapılabilmiş, 20/05/2024 tarihinde arazi araç girmesine müsait olduğu anda inşai faaliyetlere başlanmıştır.
İş sahibi komşularıyla görüşüp, arazi sıkılaştırması, yol güzergahlarının planlanması gibi işlemleri bu süreç te yaptırmış ve işlemlerimize 20.05.2024 tarihinde başlanmıştır. 17 Ekim 2024 tarihinde iş akdi durdurulmuş, bu süreç içerisinde bayram tatili girilmesi, bölgesel zorluklardan kaynaklı (Beton gecikmesi dolgu blokajı gecikmesi) gecikmeler, alt yapıdan kaynaklı elektrik temini için beklenmesi (Sürekli elektrik kesilmesi) ve havanın yağışlı olduğu günler dikkate alındığında toplamda 28 gün firmamızdan kaynaklanmayan sebeplerle imalat gerçekleştirilememiş, 4,5 aylık süreç içerisinde inşai faaliyetler bu aşamaya kadar getirilmiştir.
Yapınız ruhsatsız olması sebebiyle firmamız tarafından toprak numunesi alınarak statik hesaplama tarafımızca yapılmış, demir kullanılmamasını iddia etmeniz için, statik hesaplamalarını incelemeniz gerekmektedir. Kullanılacak demir miktarı, beton kalitesi vb. Tüm doneler inşai faaliyet öncesinde tarafınıza paylaşılmıştır.
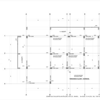
Veranda ve kolon hesaplama hatası iddianız: Öncelikle yapı projemiz alt perde kısımda ahşap Lambiri uygulaması (9+1,8) cm yapılması gerekliyken (Sahaya 4 palet lambiriniz şantiyeyi durdurma kararımız öncesinde bulunmaktadır ) eşiniz ve sizin talebiniz üzerine kolon imalatı sonrası taş kaplama olarak değiştirilmiş, 2,5 cm taş kaplama + 2 cm yapıştırıcı olmak üzere 4.5 cm kalınlığında imalat talep etmiş, 7 cm kolon ve alt perde kısmında fark oluşmuştur. Bu hata değil, talebiniz üzerine mantolama sonrası fikir değiştirmeniz kaynaklıdır.
Alttan Isıtma iddianız: Kırımdan Sonra Alttan ısıtmanın tekrar yaptırılması planlanmış, Alttan ısıtmayı kendi tanıdığınız firmaya yaptırmak istemeniz sebebiyle, tarafımızca kabul edilip maliyet tarafımızdan düşülmek üzere tarafınızın görüşmeleri neticesinde yaptırılmış, firmamız alttan ısıtma imalatının üzerine şap imalatı yapmıştır. (Kabul edilmemesi halinde şap imalatı da yapılmamış olurdu )
Saçak İddianız: Eşiniz ve sizin talepleriniz doğrultusunda, elektrikli tente imal edileceğini belirttiğiniz ve veranda kısmının sağ cephesinde çatı saçağı kısa burakılmış, anlaştığınız firmanın temkinleri sonucunda tekrar düz olacağı konusunda karar kılmanıza istinaden çatı saçağı bu şekilde 3 kez fikir değiştirmeniz sonrasında imal edilmiştir..
Yorumlar