Visit Xolvie to read complaints and reviews, or file yours.
1
Can sonuçtan hiç memnun değil

Ekspertiz Raporundaki Hatalar Nedeniyle Yüksek Tamir Masrafı Ve Mağduriyet

profile
15 Eylül 2025 01:29
2.746

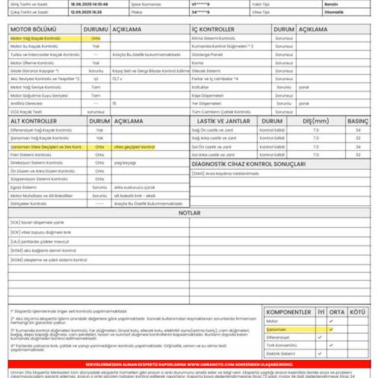
18 Ağustos 2025 tarihinde Ümran Oto Ekspertiz Samandıra şubesinde motor, şanzıman, kaporta ve boya testi paketinden yararlandım. Ekspertiz raporunda şanzıman durumu “orta” olarak belirtilmişti. Oradaki ustaya sorduğumda ise manuel geçişte sıkıntı olduğunu, otomatikte ise bir sorun olmadığını söyledi. Bu açıklamalara güvenerek aracı satın aldım.

Ancak 12 Eylül 2025 tarihinde aracı kontrole götürdüğümde, şanzıman için 80.000 TL ile 130.000 TL arasında bir tamir masrafı çıkacağı söylendi. Ayrıca ekspertiz sırasında bana otomatik şanzımanda bir arıza olmadığı belirtilmişti, fakat şimdi ciddi bir arıza olduğu ortaya çıktı.

Bunun yanı sıra, ekspertiz raporunda motor yağı seviyesi “tam” olarak gösterilmişti. Fakat aracı satın aldıktan sonra bakıma götürdüğümde, 5 litre yağ alması gereken motorda sadece 1 litre yağ olduğu tespit edildi. Bu da rapordaki bilgilerin doğruluğuna olan güvenimi tamamen sarstı.

Durumu önce şubeye, ardından genel merkeze ilettim. Ancak genel merkezden bana ciddiyetsiz ve umursamaz bir şekilde “İstediğin yere şikayet et” denildi ve ustalarının doğru işlem yaptığı iddia edildi. Oysa ortada ciddi bir mağduriyet söz konusu.

Belge numaram: 2514514100818. İlk defa böyle bir sorun yaşıyorum. Şanzımandaki bu büyük arızanın ve motor yağı seviyesinin yanlış raporlanmasından dolayı oluşan tamir masrafımın karşılanmasını talep ediyorum.

15 Eylül 2025 10:05 (Şikayetten 8 saat sonra)
15 Eylül 2025 10:11
Can
Can
15 Eylül 2025 10:23

Firma olarak ustanızın sözüne istinaden ben bu aracı alırken beni yanlış yönlendirmiş rapora bunu yazmayıp beni mağdur etmiştir. Konuşma kaydımda da bunu belirtmeme rağmen sonuçsuz kaldı. Raporun görselini sadece firma görebilecek şekilde eklediğim için tek sayfa koydum. Rapor numarası elinizde olduğu için siz zaten ulaşabiliyorsunuz. Ayrıca bugün dahil 1 ay olmadı. Buna rağmen 1 ay olmuş gibi bir cevap veriyorsunuz. Bu mu sizin kurumsal şirket anlayışınız? Tebrikler

profile-icon
Yorum yazabilmek için ya da .

Yorumlar

İlk yorumu sen yap

Benzer Şikayetler

Ekspertiz Raporu Sonrası Motor Arızası Ve Mağduriyet Yaşadım

profile
02 Haziran 2025 14:07
3.578
Ekspertiz Raporu Sonrası Motor Arızası Ve Mağduriyet Yaşadım
1
İdris sonuçtan hiç memnun değil

Ekspertiz Raporunda Atlanan Şasi İşlemi Nedeniyle Araçta Değer Kaybı Yaşadım

profile
03 Ekim 2025 21:55
2.643
Ekspertiz Raporunda Atlanan Şasi İşlemi Nedeniyle Araçta Değer Kaybı Yaşadım
Ekspertiz Raporunda Atlanan Şasi İşlemi Nedeniyle Araçta Değer Kaybı Yaşadım
1
Özlem sonuçtan hiç memnun değil

Ekspertiz Raporunda Ciddi Hatalar Ve İlgisiz Tavır Mağduriyet Yarattı

profile
07 Ağustos 2025 10:32
1.841
ekspertiz-raporunda-ciddi-hatalar-ve-ilgisiz-tavir-magduriyet-yaratti-4.jpg
ekspertiz-raporunda-ciddi-hatalar-ve-ilgisiz-tavir-magduriyet-yaratti-3.jpg
ekspertiz-raporunda-ciddi-hatalar-ve-ilgisiz-tavir-magduriyet-yaratti-2.jpg
ekspertiz-raporunda-ciddi-hatalar-ve-ilgisiz-tavir-magduriyet-yaratti-1.jpg

Ekspertiz Raporundaki Hatalar Nedeniyle Büyük Maddi Kayıp Yaşadım

profile
30 Mayıs 2025 10:19
2.817
Ekspertiz Raporundaki Hatalar Nedeniyle Büyük Maddi Kayıp Yaşadım
Ekspertiz Raporundaki Hatalar Nedeniyle Büyük Maddi Kayıp Yaşadım
1
Barış sonuçtan hiç memnun değil

Ekspertiz Raporundaki Eksiklikler Nedeniyle Araçta Büyük Maddi Kayıp Yaşadım

profile
06 Ekim 2025 12:16
1.639
ekspertiz-raporundaki-eksiklikler-nedeniyle-aracta-buyuk-maddi-kayip-yasadim-1.jpg
Benzer Şikayet Yaz